15 Lower Teddington Road
aka 1 Lansdowne Villa

1861 Census Schedule # 185
1871 Census Schedule # 27
1881 Census Schedule # 12
1891 Census Schedule # 196
1901 Census Schedule # 11
1911 Census Schedule # 28

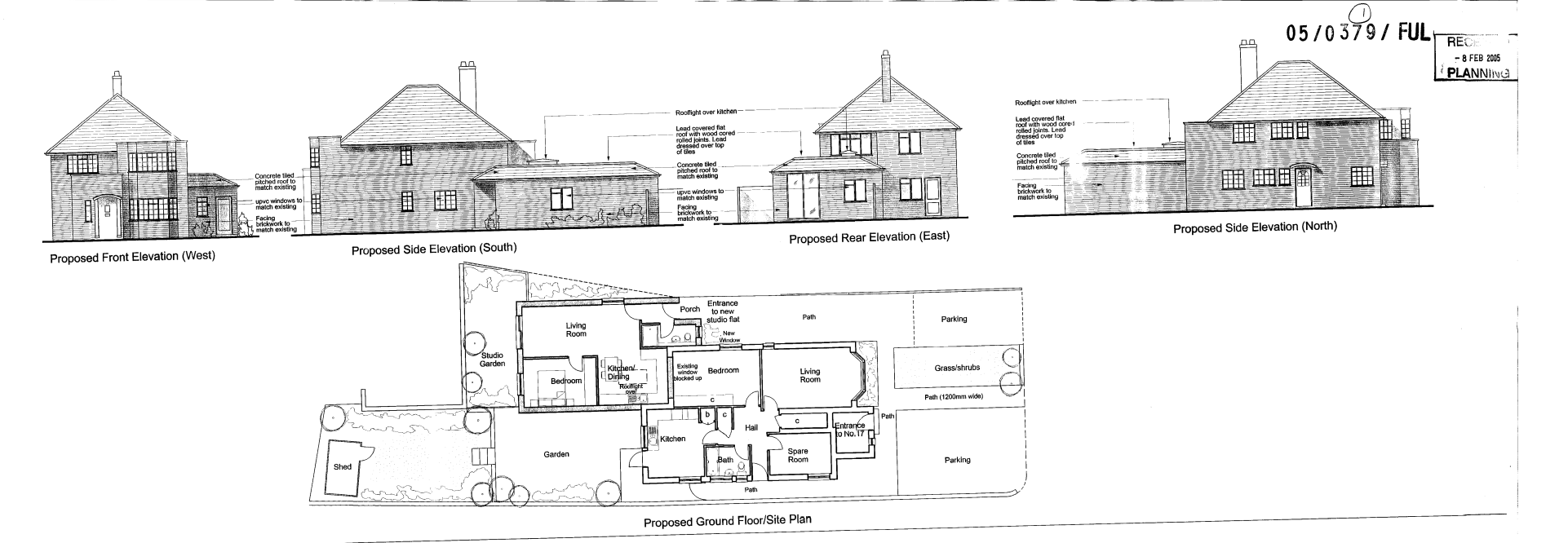
Recent Planning Aplication 2005
Occupiers to 2000

