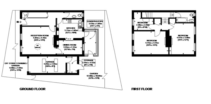
Estate Agent Publicity Material
5a Lower Teddington Road for sale December 2017
These images are used in good faith. The copyright owner may contact this website via mail@hamptonwickhistory.org.uk

Estate Agent Publicity Material
5a Lower Teddington Road for sale December 2017
These images are used in good faith. The copyright owner may contact this website via mail@hamptonwickhistory.org.uk
